■ノアケル(NOAKEL)の機能及び特徴■
|
| ■ |
“ノアケル(NOAKEL)”は、室外側に鍵穴が見えないのでピッキングすることが出来ません。
|
| ■ |
操作は付属のリモコンのボタンひとつで施錠・解錠が可能です。
|
| ■ |
リモコンの誤認識率は1/50億の最高級精度。
|
| ■ |
リモコンは最大25個まで登録可能。また、1個のリモコンを複数の“ノアケル”に登録すれば、1個のリモコンで複数のドアの施解錠を行うことが可能になります。リモコン登録手順もカンタンです。
|
| ■ |
ノアケル(NOAKEL)は電話での遠隔操作が可能です。外出中にお知り合いの方がお見えになられても、携帯電話の遠隔操作で解錠して入室していただくことが可能になります。(介護サービスをお受けになられているご家庭に好評です。外出中でもケアマネージャー様からの連絡により、携帯電話で解錠して入室いただけます。)※ビジネスホンは対応していません。
|
| ■ |
電話解錠は暗証番号による解錠・施錠。電話をかけて暗証番号をプッシュすれば施錠・解錠が行えます。暗証番号も4~12桁で任意に設定可能。※ビジネスホンは対応していません。
|
| ■ |
“ノアケル(NOAKEL)”はオートロック機能付き。ドアを閉めれば自動的に施錠状態になるので閉め忘れなし。(オートロック機能OFF機能も装備)
また、携帯電話による操作により遠隔地から施錠する事も可能です。「ドアの鍵閉めたかな?」と心配になられても、電話があればすぐに施錠することが可能です。
|
| ■ |
音と光で開閉動作を確認できます。
|
| ■ |
上記操作音の音量は調整可能です。深夜・早朝の操作音は以外と気になるもの。ご近所やご在宅の方に迷惑をかけないチョットした配慮です。
|
| ■ |
“ノアケル(NOAKEL)”はバールなどによるこじ開けにも約100dBの大音量アラームで威嚇。また、本体の強度も最大約300kgまでの引っ張り強度を確立。
|
| ■ |
万が一付属の電池が無くなっても外部から電源供給が可能です(角型電池006P使用)。また、オプションの“緊急解錠器”を取り付ければ、機械部が壊れても非常解錠が可能になります。
|
| |
非常解錠機能付セットには、上記の製品に
下記の追加機能が本体に付属しています。

|
|
| ■ |
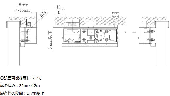
“ノアケル(NOAKEL)”は、既設ドアに取り付けられます。電源も乾電池式なので配線工事も不要です。
|
| ■ |
玄関ドアに穴などを開けられない賃貸物件でも、オプションの“賃貸用ブラケット”を使用すれば、玄関ドアには穴を開けずにお取り付けが可能です。
|
| ■ |
“ノアケル(NOAKEL)”は純国産製で、製造元並びに販売元も日本企業の製品です。海外生産品の輸入品ではございませんので安心です。
|